

















Deanshut Road, Oldham, OL82PN
View MapAvailable from £77,500 for a 25% share with Shared Ownership
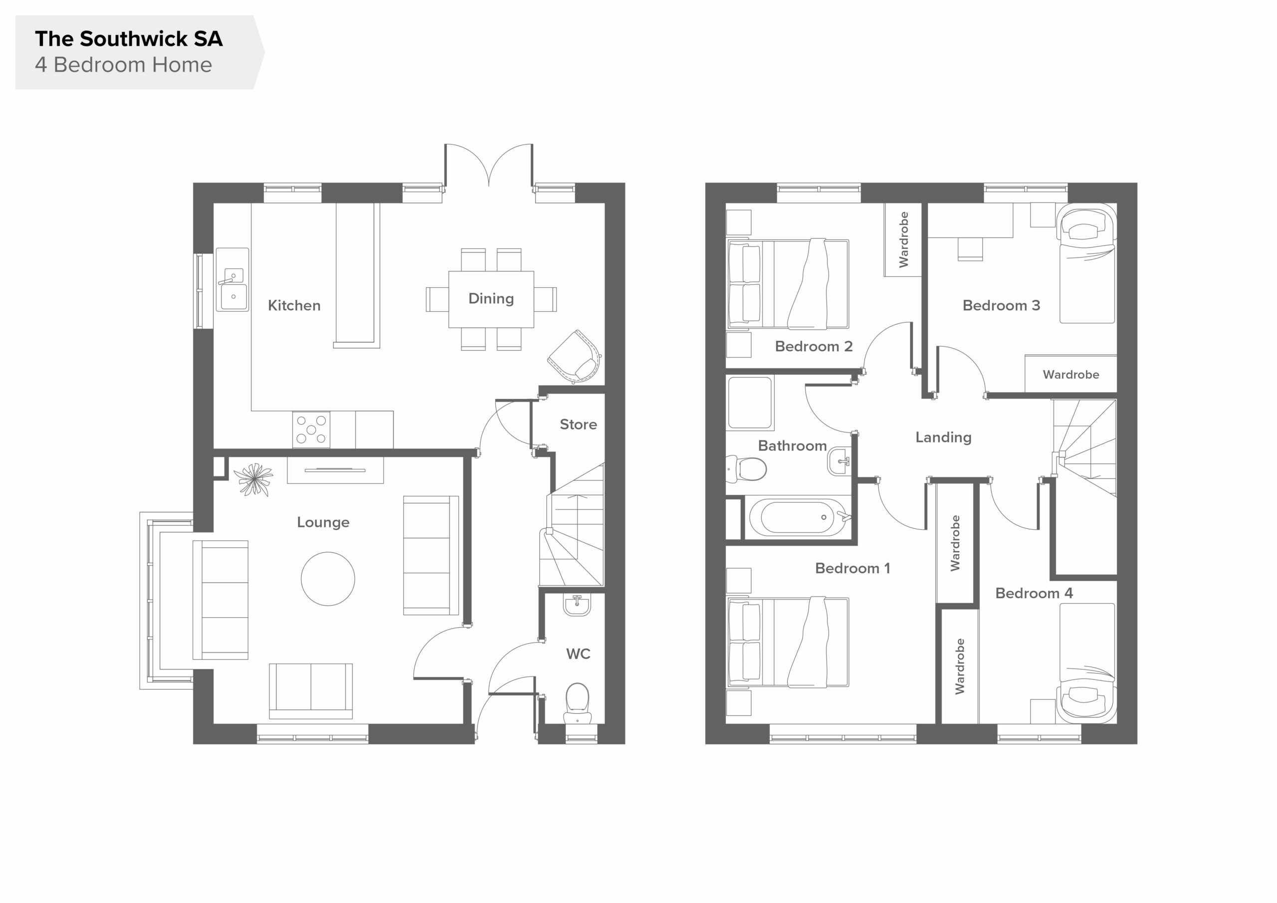
Welcome to The Southwick, a 4 bedroom detached and semi-detached house type that sits proudly on our Hartshead View development. There will be three of this house type available on the development, available to purchase via Shared Ownership.
Take a tour of our Southwick show home
View our virtual Matterport tour of “The Southwick” show home
What is Shared Ownership?
Shared Ownership is a scheme designed to help people onto the property ladder. It’s backed by the government and it allows you to buy a share in a home now, while having the option to buy more of it in the future.
Click here to visit our Shared Ownership Info Hub and find out more, or watch the video below to find out how one of our recent customers benefited from a Shared Ownership home.
You’re interested in The Southwick SA at Hartshead View, what’s next?
Click the ‘Enquire Now’ button at the top of this page and fill out your details. A friendly member of our team will send you all the information we have about this property and the development while adding you onto our mailing list. We will then email everyone on the mailing list when appointments are available. To ensure the process is fair, we always inform everyone who is interested in these homes at the same time.
Reservations for homes are only accepted following an appointment with one of our Sales Advisors.
Please head to the Hartshead View development page to see what other house types are available on this development.
Please note: Some images used on this page are CGIs (computer generated images) and so, they may vary from the actual specification or layout.
Hartshead View is located just south of Oldham town centre, providing the perfect blend of suburban comfort, with city centre convenience. Residents of Hartshead View enjoy excellent transport links, with easy access to Oldham, Ashton-Under-Lyne and Manchester, perfect for commuters. The town centre of Oldham is just a short drive away, and is home to Spindles Shopping Centre, which offers a wide range of supermarkets, restaurants and high street favourites. Some of the North Wests most iconic green spaces such as Dovestones Resevoir and Daisy Nook Country Park are also located nearby, making this the perfect area for those who love to explore and relax amidst nature. With a number of ‘Outstanding’ schools nearby, this is an ideal location for homeowners with children.
Distances by foot:
Distances by car:
All of the homes available at Hartshead View will have the below specifications:
*The HBF (House Building Federation) has reported that a new build home could save you an average of £3,100 per year on energy bills, compared to an older house that isn’t energy efficient
Work out the typical monthly costs of buying a Shared Ownership home using our handy affordability calculator. Simply input the value of the property you are interested in, select a share percentage, complete the remaining details, and the calculator will provide you with an example of what you can expect to pay on a monthly basis.
Please note, these figures are applicable to new build homes only and not resale properties.
*The deposit is set to 5% of the share price
Monthly Mortgage Costs:
Monthly Rental Costs:
Total monthly costs:
Share Value
Mortgage amount
* Other fees not shown in calculations ** This a guide only, not actual mortgage advice.
| Cookie | Duration | Description |
|---|---|---|
| cookielawinfo-checkbox-analytics | 11 months | This cookie is set by GDPR Cookie Consent plugin. The cookie is used to store the user consent for the cookies in the category "Analytics". |
| cookielawinfo-checkbox-functional | 11 months | The cookie is set by GDPR cookie consent to record the user consent for the cookies in the category "Functional". |
| cookielawinfo-checkbox-necessary | 11 months | This cookie is set by GDPR Cookie Consent plugin. The cookies is used to store the user consent for the cookies in the category "Necessary". |
| cookielawinfo-checkbox-others | 11 months | This cookie is set by GDPR Cookie Consent plugin. The cookie is used to store the user consent for the cookies in the category "Other. |
| cookielawinfo-checkbox-performance | 11 months | This cookie is set by GDPR Cookie Consent plugin. The cookie is used to store the user consent for the cookies in the category "Performance". |
| viewed_cookie_policy | 11 months | The cookie is set by the GDPR Cookie Consent plugin and is used to store whether or not user has consented to the use of cookies. It does not store any personal data. |